Die Grundschule Deichhorst in Delmenhorst soll zur Ganztagsschule erweitert und in diesem Rahmen von einer drei- zu einer vierzügigen Schule ausgebaut werden. Der angrenzende Waldorf-Kindergarten, der sich auf dem Gelände südlich der Grundschule befindet, soll im Rahmen der gleichen Baumaßnahme Platz für zwei zusätzliche Gruppen erhalten.
Zurzeit besteht der Gebäudebestand der Grundschule aus zwei ein- bis zweigeschossigen Gebäuden mit Anbauten, die seit dem Erstbau im Jahr 1898 bis in die 2000er Jahre mehrfach baulich verändert wurden. Eine Turnhalle aus dem Jahr 1908 steht unter Denkmalschutz. Der Waldorf-Kindergarten in organischer „Waldorf-Architektur“ wurde 2009 errichtet.
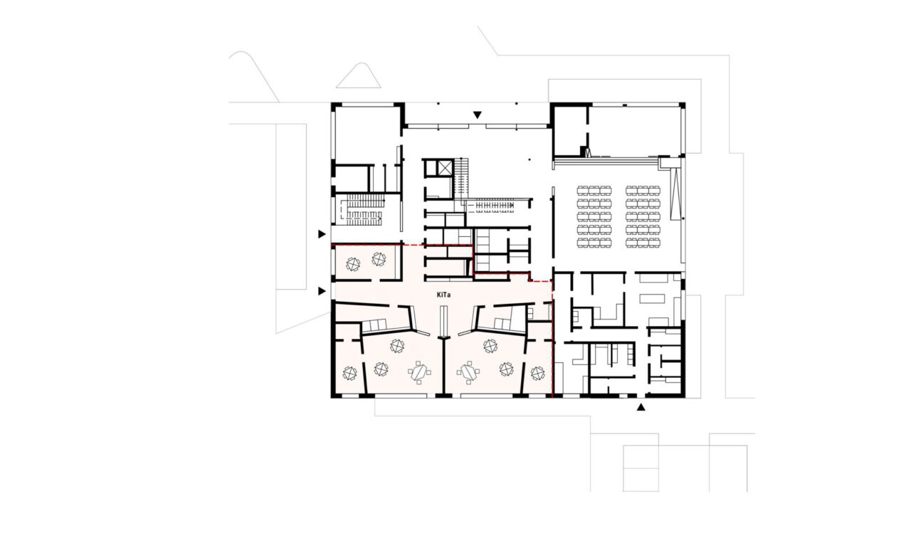
Im Fokus des Projekts steht die Planung eines kompakten Neubaus zwischen den beiden Bestandsgebäuden. Dieser soll neben einer Mensa, einem Klassencluster und den angeschlossenen Nebenräumen der Grundschule auch die neuen Räume des Kindergartens im Erdgeschoss aufnehmen. Gestalterische und funktionale Bezüge zu den Bestandsgebäuden werden hergestellt werden – sowohl in der architektonischen Gestaltung des Neubaus als auch in der Wegeführung für die verschiedenen Ziel- und Besuchergruppen.
Die Mensa der Grundschule soll auch für externe Veranstaltungen genutzt werden und über einen gut erreichbaren, vom Schulhof aus einsehbaren Eingang verfügen.
Aufgrund der großen Baumasse entsteht ein Gebäude mit tiefem Kern, den wir mit einem geeigneten Grundriss aufbrechen und organisieren. Dabei setzen wir auf offene Flure, direkte Sichtmöglichkeiten nach außen und ein reduziertes Farbkonzept, das ein ruhiges Lernumfeld schafft.
Die Fassade des Neubaus wird durch Fenster- und Brüstungsbänder gegliedert, wobei letztere durch eine differenzierten Fugenfarbe akzentuiert werden. Die Fensterflächen werden mit schmalen feststehenden Elementen mit farbigem Glas gestaltet. Zudem eröffnet der Neubau immer wieder Bezüge zur umgebenden Natur und wird möglichst viele Bäume in seinem Umfeld erhalten.
Die Stadt Delmenhorst verfolgt das Ziel, Klimamusterstadt zu werden. Wir berücksichtigen dies mit einer klimaresilienten Gebäudeplanung (KfW-40-Standard). Geplant sind Photovoltaikanlagen auf den Dächern sowie eine Dach- und Fassadenbegrünung. Darüber hinaus legen wir Wert auf Barrierefreiheit und auf eine Konstruktion mit möglichst geringen Betriebs- und Unterhaltungskosten.
Die Fertigstellung des Neubaus ist für den Sommer 2027 geplant.